Свободен
Луксозен тристаен апартамент в затворен комплекс Вероника и Мираж
3 000 €
Детайли
- Луксозен тристаен апартамент в затворен комплекс Вероника и Мираж
- Квадратура 213 ㎡
- Вход Б (Мираж)
- Етаж 5
- Тип Тристаен
- Чиста площ 179 ㎡
- Обща площ 213 ㎡
- Цена 3 000 €
Описание
МОРСКА ПАНОРАМА - ЛУКСОЗНО ОБЗАВЕДЕН - ЗАТВОРЕН КОМПЛЕКС
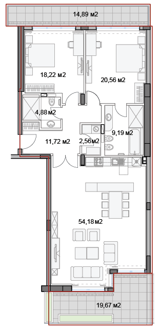
Предлагаме на Вашето внимание чисто нов прекрасен апартамент с две спални намиращ се в луксозен комплекс от затворен тип на първа линия, находящ се в к.к. СВ. св. Константин и Елена. Жилището е луксзно и модерно, проектирано от професионален дизайнерски екип, изпипано до най-малкия детайл, за да даде на своите обитатели максимамален уют и комфорт. Състои се от слънчева и просторна дневна с големина 54.18м2 и излаз към голям балкон и спираща дъха морска панорама, две спални с тераса, с големини съответно 18.22м2 и 20.56м2, едната от които разполага със собствена баня/тоалетна, отделно има още една баня/тоалетна, перално помещение и коридор. Отдава се дългосрочно, като е обзаведено и оборудвано с всичко необходимо за едно домакинство.
Комплексът е модерен, с всички удобства за първокласен живот луксозен като СПА център, басейн, фитнес, постоянна охрана, място за почивка и разходки гарантиращи уединение и спокойствие. Тук ще намерите уюта на личното си пространство в съчетание с безценния достъп до морето и всичко, което мечтаният морски живот предлага.
В комплекса се предлага и опция за периодично почистване на имота.
Осигурена е възможност за паркиране с такса 10лв./ден без вкл. ДДС.
За повече информация - 0887 694 503
Предлагаме на Вашето внимание чисто нов прекрасен апартамент с две спални намиращ се в луксозен комплекс от затворен тип на първа линия, находящ се в к.к. СВ. св. Константин и Елена. Жилището е луксзно и модерно, проектирано от професионален дизайнерски екип, изпипано до най-малкия детайл, за да даде на своите обитатели максимамален уют и комфорт. Състои се от слънчева и просторна дневна с големина 54.18м2 и излаз към голям балкон и спираща дъха морска панорама, две спални с тераса, с големини съответно 18.22м2 и 20.56м2, едната от които разполага със собствена баня/тоалетна, отделно има още една баня/тоалетна, перално помещение и коридор. Отдава се дългосрочно, като е обзаведено и оборудвано с всичко необходимо за едно домакинство.
Комплексът е модерен, с всички удобства за първокласен живот луксозен като СПА център, басейн, фитнес, постоянна охрана, място за почивка и разходки гарантиращи уединение и спокойствие. Тук ще намерите уюта на личното си пространство в съчетание с безценния достъп до морето и всичко, което мечтаният морски живот предлага.
В комплекса се предлага и опция за периодично почистване на имота.
Осигурена е възможност за паркиране с такса 10лв./ден без вкл. ДДС.
За повече информация - 0887 694 503
Направете запитване